リノベーション「めくリノ」シリーズ 神奈川県相模原市

弊社のブランド「めくリノ」シリーズマンションが販売開始です♪
「縁を結ぶ家」をコンセプトに設計しました。
リビングには角のない2つの「照明付きの折上天井」を採用しました。
床材・建具・設備・クロスなど一つひとつ丁寧に素材を選んだ物件です。

物件概要
物件名:ライフプラザ相模原
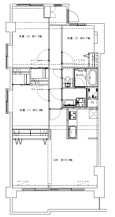
専有面積:80.01㎡
間  取:3LDK+2WIC

PAGE TOP